Bay braces are used for the lateral bracing ringlok scaffolding.Bay braces can also be used as obtuse angle mid rail and top pr hand rails in conjunction with our stair system.Were made of high strength structural steel with hot dip galvanizing finish.
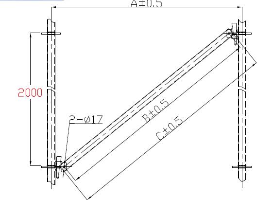
Code | Description | A | B | C | Weight |
HSCB15720 | 1.57M*2M Brace | 1570MM | 2450MM | 2488MM | 8.79KG |
HSCB21320 | 2.13M*2M Brace | 2130MM | 2811MM | 2849MM | 10.19KG |
HSCB30520 | 3.05M*2M Brace | 3050MM | 3519MM | 3557MM | 11.94KG |


